Proyecto en fase de diseño

El legado de un arquitecto vive en sus obras.

Realizado por Arq. Maikel Ramírez.

Proyecto EN FASE DE DISEÑO

En modela 3D

Proyecto de obra nueva con acabados minimalistas tanto en el interior como en el exterior pero danto un toque de elegancia, en este proyecto encontramos la perfecta armonía entre materiales como la madera y la piedra natural con luces incorporadas en techo de forma indirecta y acompañados de unos colores neutros.

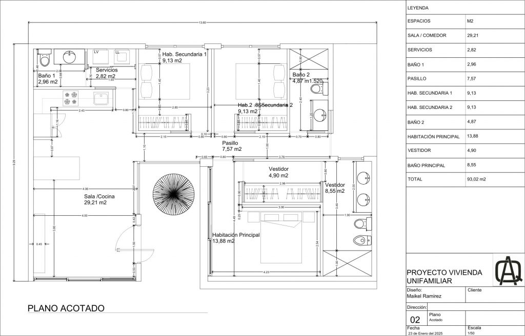
Metros cuadros de construcción: 120m2.
Remodelaciones: 3 habitaciones, zona de servicios, sala cocina comedor estilo americano
Materiales: Premium.
Tiempo de trabajo: 6 mes.

DISEÑO

En diseño

PLANOS PROYECTO VIVIENDA UNIFAMILIAR

Scroll al inicio